• Idioma :

  • Català
    • Català
    • Español
Habitatge Tarragona | SMHAUSA: Servei Municipal de l'Habitatge
  • ACTUALITAT
    • Notícies sobre l’habitatge
    • Cicle de conferències
    • Temes de consulta
  • SERVEI MUNICIPAL DE L’HABITATGE
    • Què és SMHAUSA?
    • Consell d’administració
    • Passat, present i futur de l’habitatge a Tarragona
    • Catàleg de serveis en matèria d’habitatge
    • Promoció Les Oliveres
    • Actuacions urbanístiques
    • Portal de transparència
    • Contractació pública
    • Factures electròniques
    • Convocatòries de personal
    • Cita prèvia
  • OFICINA LOCAL DE L’HABITATGE
    • Serveis de l’Oficina Local de l’Habitatge
    • Borsa de mediació lloguer social
    • Programa de masoveria urbana
    • Impresos i formularis
    • Ajuts i subvencions a l’habitatge
    • Cita Prèvia Oficina Local de l’Habitatge
  • CONSELL DE L’HABITATGE
    • Què és?
    • Estructura i organització
    • Reglament de funcionament
  • CONTACTE
Select Page
L’Ajuntament edita un mapa dels entorns residencials de rehabilitació programada a Tarragona

L’Ajuntament edita un mapa dels entorns residencials de rehabilitació programada a Tarragona

L’objectiu és informar dels edificis de la ciutat que poden optar a una rehabilitació, quan s’obri la convocatòria que esta prevista pel gener de 2023. L’Ajuntament de Tarragona ha editat un mapa dels entorns residencials de rehabilitació programada,...

L’OFICINA LOCAL DE L’HABITATGE DE TARRAGONA HA GESTIONAT MÉS DE 3.000 SOL·LICITUDS D’AJUTS AL LLOGUER AQUEST 2022  

S’han tramitat ajudes destinades a joves menors de 36 anys, a adults, gent gran i persones en situació de risc d’exclusió social    Des de principis d’aquest any 2022, l’Oficina Local de l’Habitatge de Tarragona ha gestionat un total de 3.026 sol·licituds d’ajuts...
L’AJUNTAMENT ES REUNEIX AMB LES ENTITATS VEÏNALS PER EXPLICAR ELS AJUTS A LA REHABILITACIÓ D’EDIFICIS

L’AJUNTAMENT ES REUNEIX AMB LES ENTITATS VEÏNALS PER EXPLICAR ELS AJUTS A LA REHABILITACIÓ D’EDIFICIS

L’objectiu és informar i acompanyar a les comunitats de propietaris que es vulguin acollir a l’ajuda Després d’aconseguir 8.179.512,12 € de cara a propers ajuts de rehabilitació d’edificis lligats als fons Next Generation per tal de millorar els edificis en matèria...

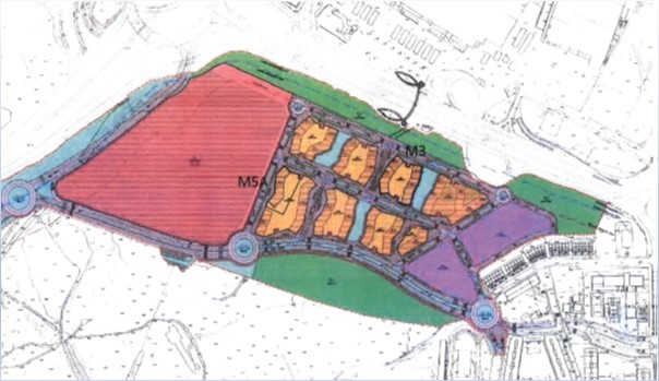
Habitatge ha comprat 23 pisos socials i té sis pendents més d’escripturar

En els darrers dos anys s’ha habilitat una partida de dos milions que, amb les noves incorporacions, s’esgotarà. El Servei Municipal de l’Habitatge i Actuacions Urbanes (Smhausa) pràcticament esgotarà en les properes setmanes la partida de dos...

Tarragona disposarà de 8,2 milions de los Next Generation per rehabilitar habitatges

El 2 de setembre de 2022 l’Agència de l’Habitatge de Catalunya ha aprovat la resolució que selecciona la proposta que va presentar l’Ajuntament de Tarragona per declarar determinades zones de Tarragona com a entorns residencials de rehabilitació programada (ERRP)...
« Older Entries
Next Entries »

Últimes notícies publicades

  • Ampliació de termini per sol·licitar ajuts al lloguer per a persones d’entre 36 i 64 anys
  • Subvencions per al pagament del lloguer o cessió d’ús per a persones entre 36 i 64 anys
  • Subvencions per al pagament de lloguer o cessió ús per persones de 65 anys o més
  • Subvencions del Bo Lloguer Jove
  • Sessió informativa per a la promoció de 192 habitatges de lloguer assequible Les Oliveres
  • Subvencions per a obres d’arranjament a l’interior dels habitatges per a les persones grans
  • Ajudes accés a l’habitatge per a joves
  • Celebrada la primera Jornada sobre el sensellarisme ocult a Tarragona
  • Subvencions del Bo Lloguer Jove
  • Jornada sobre el sensellarisme ocult a Tarragona
  • Avís legal i condicions d’ús
  • Política de privacitat i cookies
  • Accessibilitat
  • Perfil del contractant
  • Portal de transparència
  • Factures electròniques
  • Codi ètic
  • Temes de consulta

Servei Municipal de l’Habitatge i Actuacions Urbanes S.A.

Carrer dels Descalços, 15
43003 Tarragona

Tel.: 977 244 056

e-mail: info@tarracohabitatge.cat

 

Oficina Local de l’Habitatge

Carrer dels Descalços, 11
43003 Tarragona

Tel. 977 244 056 (Extensió 2)

e-mail: info@oficinahabitatgetgna.cat

Servei Municipal de l'Habitatge i Actuacions Urbanes S.A.
Política de privacitat i cookies
Necessitem el teu consentiment per continuar. Utilitzem cookies perquè aquest lloc web funcioni correctament. En fer clic a “Acceptar tot” ens dones el teu consentiment a l'ús de les cookies.
Acceptar tot Rebutjar tot Configuració
Política de privacitat
Acceptar la política de privacitat i cookies

Política de privacitat i cookies

Aquest lloc web utilitza cookies per millorar la vostra experiència mentre navegueu pel lloc web. D'aquestes cookies, les que es classifiquen com a necessàries s'emmagatzemen al vostre navegador, ja que són essencials per al funcionament de les funcionalitats bàsiques del lloc web.

També fem servir cookies de tercers que ens ajuden a analitzar i entendre com feu servir aquest lloc web. Aquestes cookies s'emmagatzemaran al vostre navegador només amb el vostre consentiment. També teniu l'opció de desactivar aquestes cookies, però la desactivació d'algunes d'elles pot tenir un efecte en la vostra experiència de navegació.
Necessàries
Sempre activat
Les cookies necessàries són absolutament essencials perquè el lloc web funcioni correctament. Aquesta categoria només inclou cookies que garanteixen les funcionalitats bàsiques i les característiques de seguretat del lloc web. Aquestes cookies no emmagatzemen cap informació personal.
GaletaDuradaDescripció
cookielawinfo-checkbox-advertisement1 yearSet by the GDPR Cookie Consent plugin, this cookie records the user consent for the cookies in the "Advertisement" category.
cookielawinfo-checkbox-analytics1 yearSet by the GDPR Cookie Consent plugin, this cookie records the user consent for the cookies in the "Analytics" category.
cookielawinfo-checkbox-functional1 yearThe GDPR Cookie Consent plugin sets the cookie to record the user consent for the cookies in the category "Functional".
cookielawinfo-checkbox-necessary1 yearSet by the GDPR Cookie Consent plugin, this cookie records the user consent for the cookies in the "Necessary" category.
cookielawinfo-checkbox-others1 yearSet by the GDPR Cookie Consent plugin, this cookie stores user consent for cookies in the category "Others".
cookielawinfo-checkbox-performance1 yearSet by the GDPR Cookie Consent plugin, this cookie stores the user consent for cookies in the category "Performance".
CookieLawInfoConsent1 yearCookieYes sets this cookie to record the default button state of the corresponding category and the status of CCPA. It works only in coordination with the primary cookie.
Funcionals
Les cookies funcionals ajuden a realitzar determinades funcionalitats, com ara compartir el contingut del lloc web a plataformes de xarxes socials, recopilar comentaris i altres funcions de tercers. En aquests moments no tenim cap cookie funcional instal·lada.
De rendiment
Les cookies de rendiment s'utilitzen per entendre i analitzar els índexs clau de rendiment del lloc web que ajuden a oferir una millor experiència d'usuari per als visitants. En aquests moments no tenim cap cookie de rendiment instal·lada.
Analytics
Les galetes analítiques s'utilitzen per entendre com interactuen els visitants amb el lloc web. Aquestes cookies ajuden a proporcionar informació sobre mètriques de nombre de visitants, percentatge de rebots, font de trànsit, etc.
GaletaDuradaDescripció
_ga1 year 1 month 4 daysGoogle Analytics sets this cookie to calculate visitor, session and campaign data and track site usage for the site's analytics report. The cookie stores information anonymously and assigns a randomly generated number to recognise unique visitors.
_ga_*1 year 1 month 4 daysGoogle Analytics sets this cookie to store and count page views.
Altres
En aquests moments no tenim cap altre cookie instal·lada.
DESA I ACCEPTA
Gràcies a CookieYes Logo